Комплектация дома Сибит 96 м2:
Фундамент: Ленточный фундамент/Монолитная бетонная плита.
Стены: Газобетонные блоки (сибит) 400мм, 300мм с утеплением
Кровля:
Фасад (под ключ): Мокрый фасад с декоративными деревянными вставками
Инженерные сети:
Окна /двери:
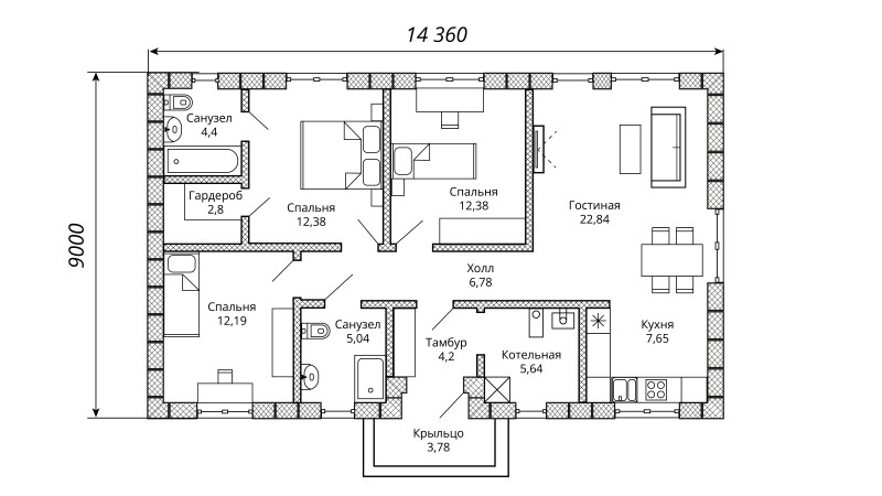
Планировка:
Выбор местоположения
Мы свяжемся с Вами в течение дня.