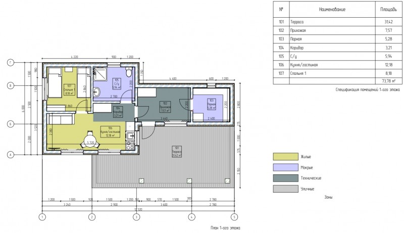
Деревянный одноэтажный дом с плоской крышей из 3 модулей. 1 из них-модуль бани. Закрытая терраса 24 м2. Панорамное остекление. Дом готов под ключ: коммуникации, отопление, вода, электрика. Срок изготовления- 4 месяца. Этот дом просто комбо-находка для ценителей уединенной загородной жизни.
Выбор местоположения
Мы свяжемся с Вами в течение дня.