Модуль-С3 №419

Цена строительства от 1 570 000 ₽* * Стоимость не является окончательной
Заявка на консультацию
  • Общая площадь 34 м2
  • Длина 5.6 м
  • Ширина 6 м
  • Количество этажей 1
  • Подвал Нет
  • Мансарда без мансарды
  • Гараж Нет
  • Терраса Да
  • Проживание Круглогодичное
  • Количество комнат 2
  • Количество спален 1
  • Количество санузлов 1
  • Вид проекта дом
  • Застройщик МАЛОЭТАЖНЫЕ ДОМА
  • Архитектурный стиль Барнхаус
  • Отделка фасада Комбинированная
  • Крыша Двускатная
  • Можно купить домокомплект Нет
  • Модульный тип строения Нет
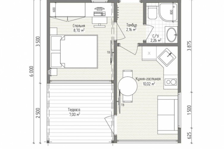
Планировки
Описание проекта

Проработанные и комфортные для проживания проекты СИП домов до 50 м2 большая редкость. Из готовых решений такого размера чаще встречаются гаражи и бытовки. Проект «Модуль-С3» приятное исключение из правила.

Одноэтажный СИП дом площадью 33,6 м2, с небольшой крытой террасой и двумя входами (один из них на террасу). Плоская крыша, панорамные окна из спальни и гостиной, привлекательный дизайн – что еще нужно для жизни на природе? Планировка дома предельно простая – тамбур с выходами в спальню, санузел и совмещенную с гостиной кухню. Из гостиной выход на террасу. За счет панорамных окон будет визуально увеличиваться площадь помещений, а в остальном это вполне типовая двухкомнатная квартира. Вот только решать где будет построена эта «квартира» не застройщику, а лично Вам.

Вас может заинтересовать
Вас может заинтересовать

Выбор местоположения

Задать вопрос / написать нам

E-mail: domgis@mail.ru

Мы свяжемся с Вами в течение дня.

Тех. поддержка
Предмет обращения:
Тукущая страница

Мы свяжемся с Вами в течение дня.

Уведомление
Предмет обращения:
Тукущая страница
Обратный звонок
Обратный звонок
Выберите ваш город
Пожаловаться

Объявление опубликовано.
Изменения сохранены

Период публикации - бессрочный, при условии подтверждения актуальности каждые 50 дней. Уведомления будут отправляться на Вашу электронную почту.

Выберите причину снятия с публикации

Снятые с публикации объявления не участвуют в поиске и недоступны для подробного просмотра.

Для повторной публикации нажмите «Вернуть в публикацию»